Сучасна новобудова біля річки | район Олексіївка (№ 22-437-989)
Ціна: 165 000 $

Адреса: вул. Глинки, Кропивницький , Кіровоградська, Новоолекісіївка
Характеристики
| Ціна: | 165 000 $ |
|---|---|
| № об'єкта: | 22-437-989 |
| Тип: | будинок |
| Поверхів: | 1 |
| Спалень: | 3 |
| Площа будинку: | 118 м2 |
| Ділянка: | 5 сот |
Опис
Сучасна новобудова біля річки | район Олексіївка
Продаж від агентства нерухомості
Пропонується до продажу стильний одноповерховий будинок, збудований за сучасним архітектурним проєктом у тихому, зеленому районі міста — Олексіївка.
До річки — близько 150 метрів, локація ідеальна для комфортного життя без міського шуму.
Основні характеристики
•Загальна площа будинку: 118 м²
•Ділянка: 5 соток
•Кількість кімнат: 3 окремі спальні
•Тип будинку: житловий, одноповерховий
•Стіни: газоблок
•Покрівля: металочерепиця
•Стан: під чистову обробку
•Санвузлів: 2
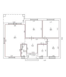
Планування
Будинок має продумане та функціональне планування:
•три ізольовані спальні;
•просторий санвузол + гостьовий;
•котельня;
•велика кухня-вітальня 39,7 м² з виходом на терасу;
•тераса 18 м² — ідеальна зона для відпочинку та прийому гостей.
Всередині виконана машинна штукатурка, що значно спрощує та здешевлює фінальний ремонт.
Ділянка та двір
•облаштоване подвір’я;
•паркомісце для 2 автомобілів;
•автоматичні ворота;
•сучасне мощення, охайна територія.
Комунікації
•центральне водопостачання;
•електроенергія 10 кВт;
•септик 11 м³;
•газ підключений.
Локація
•будинок знаходиться в межах міста;
•зелений, спокійний район;
•річка — до 150 м;
•чудовий варіант для сімейного проживання або статусної нерухомості «для себе».
Ціна: 170 000 $
Продаж від агентства нерухомості.
Повний юридичний супровід угоди.
Перегляд — за домовленістю.
















