Продається новобудова на Новоолексіївці. (№ 22-435-784)
Ціна: 180 000 $

Характеристики
| Ціна: | 180 000 $ |
|---|---|
| № об'єкта: | 22-435-784 |
| Тип: | будинок |
| Поверхів: | 1 |
| Спалень: | 3 |
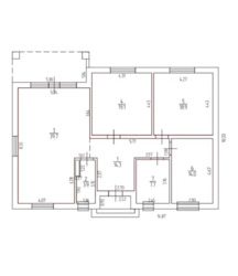
| Площа будинку: | 120 м2 |
| Ділянка: | 7 сот |
Адреса: Кіровоградська, Кропивницький , Новоолекісіївка, Глінки вул.
Продаж одноповерхового будинку в Новоолексіївці Нова будова.
Загальна площа 120 кв.м. Роботи по фасаду повністю завершені.
Усередині стіни поштукатурені. Панорамні вікна. Зручне планування.
Три великі спальні, Кухня вітальня з шатровим дахом
Санвузол t•tТехприміщення для котла та пральні Комунікації: газ
Світло підведене t•tКаналізація септик 11 кубів t•tВода централизована Додатково:
Плитка на подвір’ї t•tВідкатні ворота з електроприводом
Хороші сусіди поруч Новоолексіївка – один з найкращих районів Кропивницького.
Будинок готовий до фінального ремонту всередині. Чудовий варіант для сім’ї..
Відстань до найближчого міста: У місті;
Кількість кімнат: 4;
Тип будинку: Будинок;
Рік побудови u002F здачі: На етапі будівництва;
Тип стін: Газоблок;
Зовнішнє утеплення стін: Мінеральна вата;
Тип покрівлі: Металочерепиця;
Cанвузол: Суміжний;
Опалення: Індивідуальне газове;
Ремонт: Після будівельників;
Меблювання: Ні;







